Cette enchère est fermée, vous ne pouvez plus faire d'offre sur le lot
Données du lot
Date de départ | 21-02-2024 10:30 |
Heure de fermeture | 05-03-2024 20:50 |
Temps restant | - |
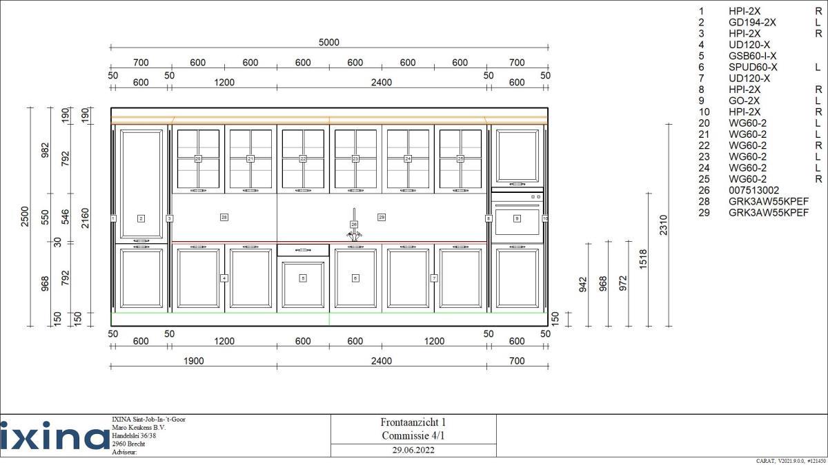
Betreft keuken zonder toestellen
Afmetingen plm: controleer technische plannen (zie foto's)
Eiland: 2210x1090x920mm
Aanrecht : 3600x600x920mm
Staande Module L: 700x585x2350mm
Staande Module R: 700x585x2350mm
Hangkast : 3600x420x880mm
Opgelet: De koper dient deze zelf op een professionele manier te demonteren zonder schade te berokkenen aan de toestellen
Grondplannen zijn beschikbaar: Zie foto's
Section de la combisaison
Ce lot est une partie d'une combinaison, détail ci-dessous
Consistant de :
117
Inbouw koel/vries combinatie PROGRESS PKG1900





05-03-2024 20:46
Ce lot est fermé
Nombres d'offres : 58
118
Inductiekooklpaat met geïntegreerd afzuigsysteem MIELE KMDA7634





05-03-2024 20:31
Ce lot est fermé
Nombres d'offres : 62